Kinépraktijk & 3 appartementen, Oudsbergen
STABILITEITSSTUDIE PROJECT NIEUWBOUW KINÉ-PRAKTIJK MET 3 APPARTEMENTEN.
Locatie: Oudsbergen
Opdrachtgever: Private opdrachtgever
Architect: Contour Architecten
Diensten: Studie stabiliteitsonderdelen en optimalisaties:
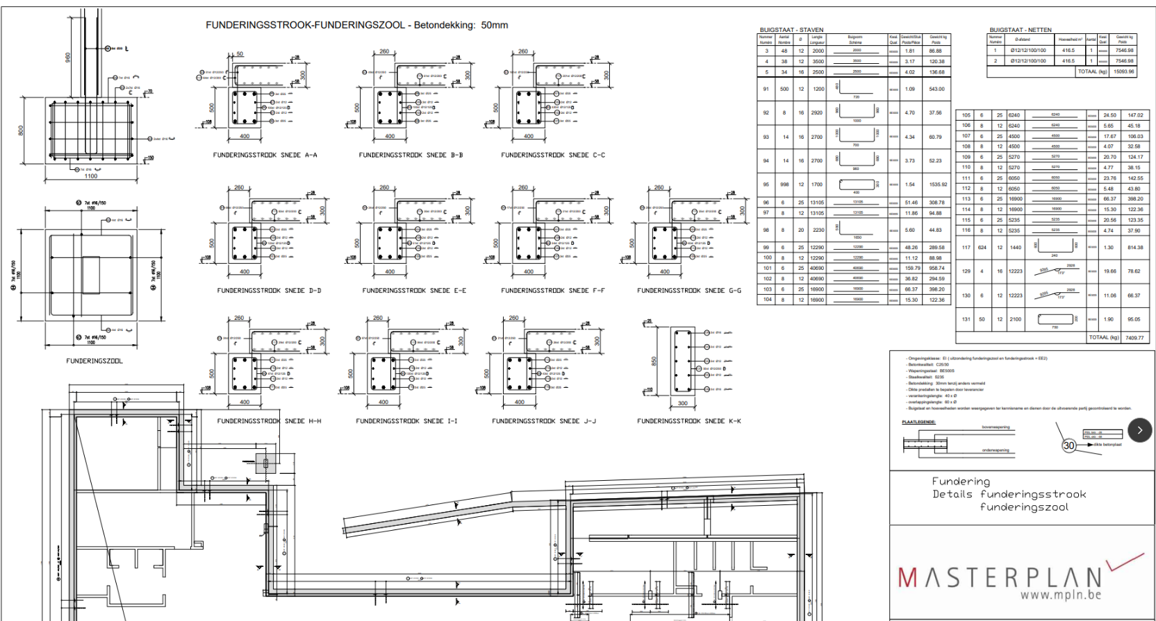
- Funderingen
- Elementen in gewapend beton, balken + kolommen + vloerplaten
- Elementen in staal, liggers + kolommen
- Digitale bekistings- en wapeningsplannen, grondplannen + balken & details op passende schaal.
- Buigstaten
- Meetstaten
- Werfbezoeken



